The Best Estate Agency Award Winners 9 years running 2018 - 2026

Share This Property

SOLD STC House - Semi-Detached House

Paynsbridge Way, Horam

Paynsbridge Way, Horam, East Sussex
3 Bedroom
2 Reception
1 Bathroom
Price Guide

£350,000

VIDEO & 3D TOUR (Free for all our sellers) PRICE GUIDE £350,000 - £380,000

 This pretty house walking distance from the village shops in Horam is a real treat. Sat proudly in its corner plot within a close, its a wonderful place to call home. With a beautiful, mature lawned garden and a garage and off road parking, its got all that you could want. Internally the kitchen and dining area are both nice separate rooms but would make a really impressive room if combined (subject to the necessary consents). Upstairs the 3 bedrooms are all bright and airy and are served by the family bathroom in addition to the ground floor W/C. Whether a family home or something to downsize to, this home simply works!

  • Semi-Detached House
  • 3 Bedrooms
  • Pretty Lawned Garden
  • Garage and Off Road Parking
https://docs.rezi.cloud/ljoIPMQJ8wRKHsom_JswwzZ2UDt_ns6cvn0PuI8_jOk%3d/43116980.jpg?v=00000000021eee19
Video 1: https://player.vimeo.com/video/941232045
Video 2: https://tour.giraffe360.com/71b9fa8efd2c4319be9da5ad6647b7ee/
Video 3:

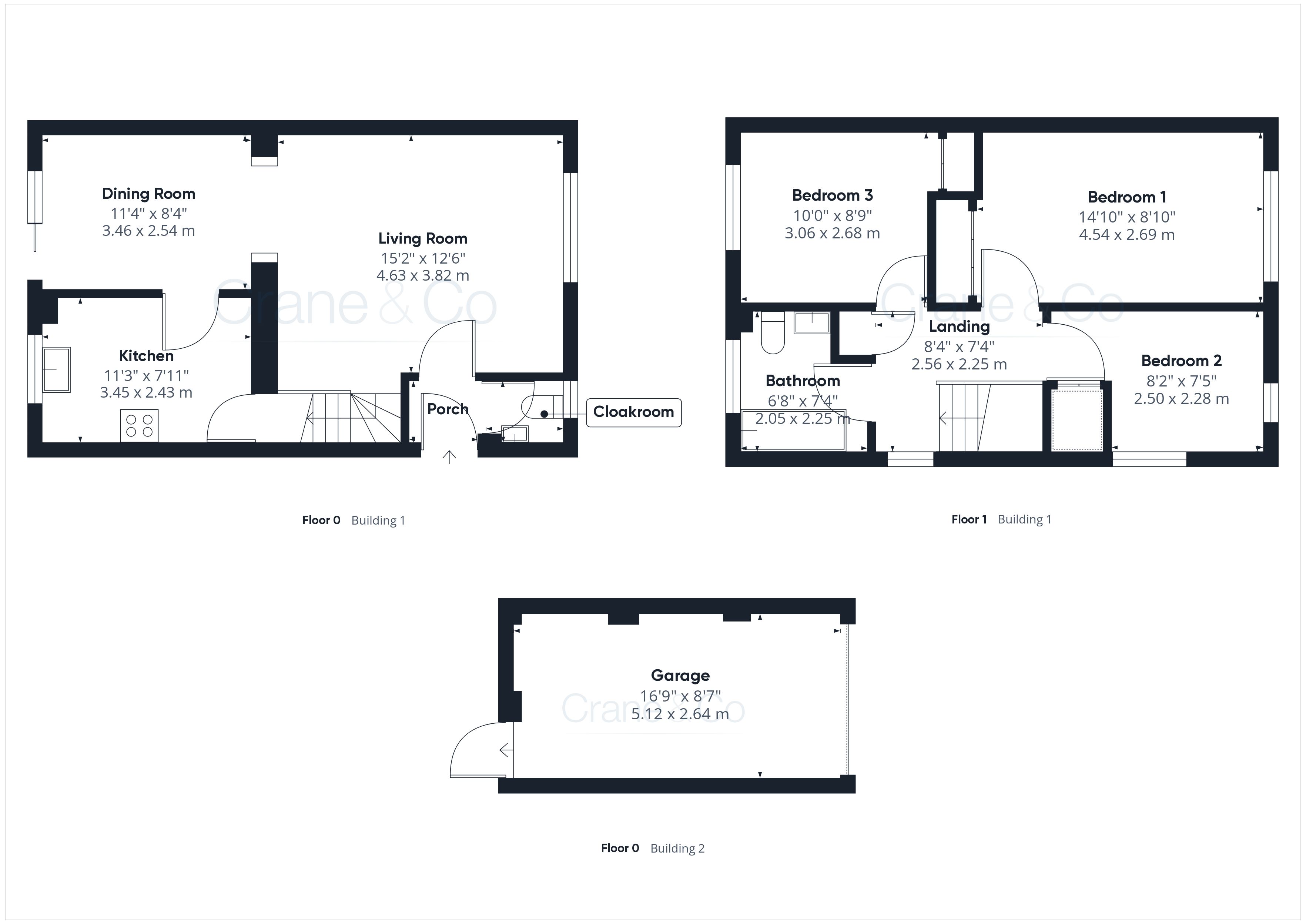
Rooms

  • Porch :
  • Entrance :
  • Cloakroom :
  • Living Room - 15' 2" x 12' 6" : (15' 2" x 12' 6" (4.62m x 3.81m) )
  • Dining Room - 11' 4" x 8' 4" : (11' 4" x 8' 4" (3.45m x 2.54m) )
  • Kitchen - 11' 3" x 7' 11" : (11' 3" x 7' 11" (3.43m x 2.41m) )
  • Bedroom 1 - 14' 10" x 8' 10" : (14' 10" x 8' 10" (4.52m x 2.69m) )
  • Bedroom 2 - v8' 2" x 7' 5" : (8' 2" x 7' 5" (2.49m x 2.26m) )
  • Bedroom 3 - 10' 0" x 8' 9" : (10' 0" x 8' 9" (3.05m x 2.67m) )
  • Bathroom :
  • Garage - 16' 9" x 8' 7 : (16' 9" x 8' 7" (5.11m x 2.62m) )

Take a 3D Virtual Tour

Why not take experience a 360° virtual tour of Paynsbridge Way, Horam. Easily navigate your way entirely through this property using your mouse, keyboard or finger on your computer, smartphone or tablet.

Crane & Co - rated as EXCEPTIONAL

Crane & Co are rated at Exceptional (in the top half of 1% of agents) by the biggest independent assessment of estate agents in the country

Crane & Co has recently not only been have been judged as being ‘Exceptional’ but has also been awarded the best single estate agency office in the entire South East region, which covers all of Sussex, Surrey and Kent.

Arrange a Viewing for Paynsbridge Way, Horam

If you would like to arrange a viewing for this property please complete the form below OR call us on 01323 440678.

Floorplans and Energy Efficiency

What's in the Paynsbridge Way, Horam area?

Whilst being largely rural in character, Horam still boasts a variety of local and national shops, several supermarkets, a cinema, and leisure centre with swimming pool and bowling alley. Most of the major banks and building societies have premises within the town centre.

Read Ofsted Reports for Local Schools

Local Primary Schools     Local Senior Schools
google map generator by embedgooglemap.co