The Best Estate Agency Award Winners 9 years running 2018 - 2026

Share This Property

SOLD STC House - Detached House

Hargrae, Hailsham Road, Heathfield

Hargrae, Hailsham Road, Heathfield, East Sussex
4 Bedroom
1 Reception
1 Bathroom
Price Guide

£435,000

VIDEO & 3D TOUR (Free for all our sellers) PRICE GUIDE £435,000 - £465,000

 This chalet bungalow has more than meets the eye. With up to 4 bedrooms arranged over 2 floors, you'll be spoilt for space, however the excellent layout means that the accommodation is versatile and bedrooms could easily be used for other purposes. An extension to the rear provides a handy utility room freeing up space in the kitchen as well as a dining area taking in the far reaching views towards Eastbourne. The garden is a treat for a gardener with an expansive lawn and scope to do so much and with a garage and ample parking, this nicely positioned house on the outskirts of Heathfield offers so much! 

  • Detached Chalet Bungalow
  • Far Reaching Views
  • Extended At The Rear
  • Lawned Garden
  • Ample Off Road Parking
  • 4 Bedrooms
https://docs.rezi.cloud/O6ib-uSS7z7G7bp4nF_7nSsqKf4Ux0-zN3A4zRGVjAM%3d/43788486.jpg?v=00000000022eacd9
Video 1: https://player.vimeo.com/video/990556650
Video 2: https://tour.giraffe360.com/0c46d70483fd45299f19588c74e70b6c
Video 3:

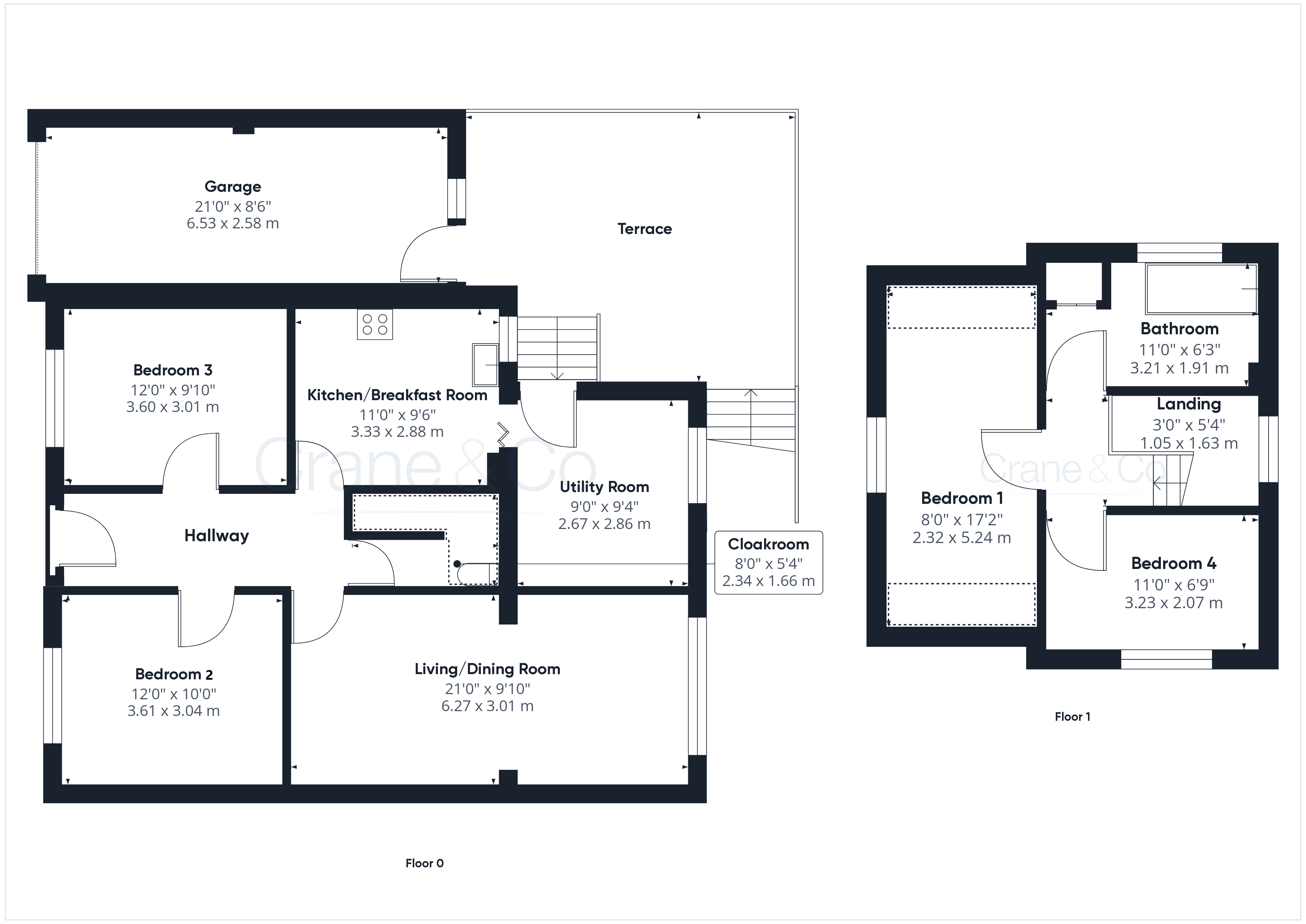
Rooms

  • Entrance Hallway :
  • Bedroom 3 - 12' 0" x 9' 10" : (12' 0" x 9' 10" (3.66m x 3.00m) )
  • Bedroom 2 - 12' 0" x 10' 0" : (12' 0" x 10' 0" (3.66m x 3.05m) )
  • Kitchen/Breakfast Room - 11' 0" x 9' 6" : (11' 0" x 9' 6" (3.35m x 2.90m) )
  • Living/Dining Room - 21' 0" x 9' 10" : (21' 0" x 9' 10" (6.40m x 3.00m) )
  • Cloakroom :
  • Utility Room :
  • 1st Floor: :
  • Bedroom 1 - 17' 2" x 8' 0" : (17' 2" x 8' 0" (5.23m x 2.44m) )
  • Bedroom 4 - 11' 0" x 6' 9" : (11' 0" x 6' 9" (3.35m x 2.06m) )
  • Bathroom :
  • Outside: :
  • Garage - 21' 0" x 8' 6" : (21' 0" x 8' 6" (6.40m x 2.59m) )

Take a 3D Virtual Tour

Why not take experience a 360° virtual tour of Hailsham Road, Heathfield. Easily navigate your way entirely through this property using your mouse, keyboard or finger on your computer, smartphone or tablet.

Crane & Co - rated as EXCEPTIONAL

Crane & Co are rated at Exceptional (in the top half of 1% of agents) by the biggest independent assessment of estate agents in the country

Crane & Co has recently not only been have been judged as being ‘Exceptional’ but has also been awarded the best single estate agency office in the entire South East region, which covers all of Sussex, Surrey and Kent.

Arrange a Viewing for Hailsham Road, Heathfield

If you would like to arrange a viewing for this property please complete the form below OR call us on 01323 440678.

Floorplans and Energy Efficiency

What's in the Hailsham Road, Heathfield area?

Whilst being largely rural in character, Heathfield still boasts a variety of local and national shops, several supermarkets, a cinema, and leisure centre with swimming pool and bowling alley. Most of the major banks and building societies have premises within the town centre.

Read Ofsted Reports for Local Schools

Local Primary Schools     Local Senior Schools
google map generator by embedgooglemap.co